Projeto desenvolvido por alunos do Curso de Arquitetura e Urbanismo da UFSM visa melhorar a qualidade de vida das mulheres privadas de liberdade no Presídio Regional de Santa Maria com criatividade e inovação
Criar uma estrutura que fosse ao mesmo tempo funcional, agradável e segura, este era o desafio dos estudantes do grupo Arquitetura de Ação Social e Ambiental (ASA), quando convocados pelo Presídio Regional de Santa Maria para criar um projeto de reforma e revitalização do pátio feminino, a prof. Dra. Arquiteta Taís Alves, orientadora do projeto ASA, juntamente com o prof. Me. Arquiteto Carlos Fraga, responsável pela co-orientação, e também membros do PET, Programa de Ensino Tutorial, coordenado pelo prof. Dr. Engenheiro Civil João Kaminski Júnior, orientaram os alunos a criarem um ambiente mais colorido e cheio de vida.
Imagem: Da esquerda para direita, a acadêmica coordenadora do projeto do Presídio, Ana Helena Leichtweis; a Coordenadora Geral do grupo ASA, Professora Dra. Arq. Taís Alves; a acadêmica Isadora Daltrozo; a acadêmica Camila Lucca, a acadêmica Renata Albernard; a acadêmica coordenadora do Projeto de Cabo Verde / África, Luzia Brand; Professor Esp. Arq. Paulo Rogério Lemos; todos membros do Grupo ASA.
Segundo explica a prof. Taís, a ideia foi criar um projeto que mantenha a segurança do presídio, mas com o menor custo possível e que atenda as necessidades solicitadas. “A meta do grupo ASA é procurar soluções para que a arquitetura com fins sociais possua qualidade estética, funcional e com tecnologias sustentáveis que primem pelos aspectos ambientais, desmistificando a ideia de que projetos de qualidade são apenas para as classes que possuam mais recursos financeiros. Portanto, buscamos a criatividade como meio de aliar qualidade com o menor custo possível, porque este é um projeto para ser social e tal questão se torna imprescindível.”
O pátio para o uso das presidiárias no dia a dia bem como para o recebimento das visitas de seus familiares (pais, filhos, entre outros) e companheiros (namorado ou marido) do Presídio Regional de Santa Maria não apresentava um espaço de estar com área suficiente coberta que protegesse as mesmas nos dias de chuva assim como para que seus familiares aguardassem em um local agradável o encontro em suas celas, da chamada “visita íntima”, com seus companheiros. Para tanto, o projeto contemplou além do espaço de estar coberto um espaço de lazer, playground para as crianças brincarem e hortas.

Imagens: Croqui inicial de concepção do partido arquitetônico, perspectiva da edificação proposta. Por Ana Helena Leichtweis.

Imagem: Corte esquemático ilustrando a proposta da cobertura “borboleta” para a nova edificação. Ao fundo, playground e parede com paineis. Por Ana Helena Leichtweis.

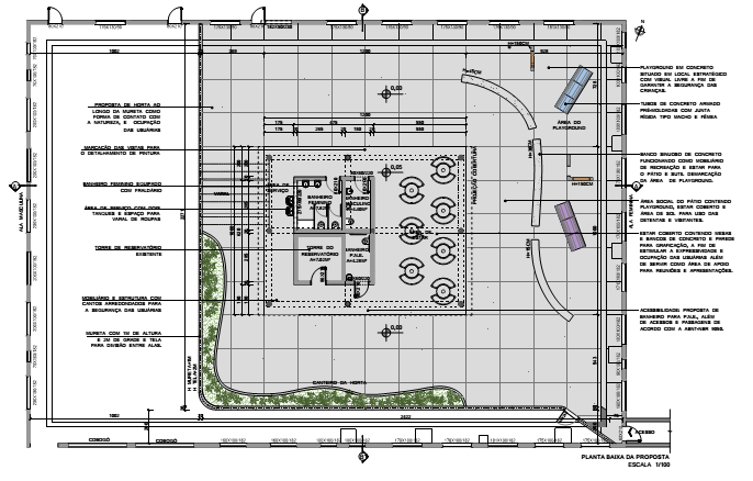
Imagem: Planta baixa do pátio feminino de uso das presidiárias e visitas, com a nova edificação ao centro (sanitários e avarandado com bancos e mesas), área de playground para crianças, à direita, e horta ao longo do muro.
Neste sentido, o projeto arquitetônico buscou atender as normas técnicas referentes às construções em presídios, uma forma pura em que sua cobertura remetendo-se ao formato telhado borboleta gerasse sensações de liberdade e leveza. Por meio dos murais propostos pela integrante do grupo e aluna do curso, a artista, Antonella Aranda Ávila, procurou-se trazer alegria ao ambiente, pois os mesmos possuem desenhos, cores vibrantes, mensagens de apoio e esperança. No mesmoespaço coberto, há um outro mural na cor preta, como se fosse um quadro negro, para que as presidiárias possam se expressar através de desenhos ou escritas assim como, nos dias de visita, tornar-se mais uma alternativa lúdica para as crianças, além dos brinquedos coloridos para se distraírem presentes no pátio. A horta inserida em um formato ondulado e o playground conformado por linhas sinuosas fazem parte do contraste que o projeto buscou, ora linhas retas, ora linhas curvas, dentre outros aspectos estéticos e funcionais, que foram criados para tornar o local mais adequado à demanda.


Imagens: Painéis criados pela artista Antonella A. Ávila a serem pintados ao redor das paredes do espaço coberto. O painel preto servirá como quadro negro para que as criançam desenhem sobre ele.
A parceria com o PET se deu pelos aspectos estruturais, hidráulicos, dentre outras questões complementares à obra. “Entregamos um projeto em nível executivo para o Presídio e não apenas uma ideia geral, com todos os detalhes necessários para que realmente o cliente consiga executar a obra”, detalha a profa. Taís. Na visão dos alunos, participar do grupo ASA é instigante. Segundo Luzia Oliver Brand, estudante de Arquitetura da UFSM e membro do projeto, “todo profissional tem o dever de cumprir um papel social no contexto em que se insere, mas acredito que nós, estudantes de universidades públicas, temos uma responsabilidade ainda maior de retribuir à sociedade o investimento que nos foi oferecido através do ensino. Portanto, trabalhar o social desde a academia é fundamental para a nossa formação”.
Para a professora, além de “propiciar ao recém-formado a oportunidade de assumir um projeto técnico, caso algum órgão tenha interesse em executá-lo”, o trabalho do grupo de pesquisa e extensão, criado em 2012, também se relaciona com a desmistificação da profissão do arquiteto como apenas vinculada ao interesse das classes média e alta. A aluna Luzia também fala dos aspectos pessoais e profissionais de se envolver em um grupo como os que o ASA gerencia. “Dificilmente o mercado de trabalho nos oferecerá muitas oportunidades de trabalhos como esses, por isso temos que nos manter atentos à realidade que nos cerca para percebermos as situações em que podemos atuar positivamente na vida das pessoas”, diz.
Trabalhando com projetos para a comunidade, que necessitem de inovações no trabalho do arquiteto e urbanista, o grupo ASA iniciou seus trabalhos em 2012, com o projeto “Escola para Todos”, realizado em Cabo Verde, na África em parceria com o Prof. Dr. Eduardo Rizzatti, Pró-reitor de infra-estruturas da UFSM. O objetivo era adaptar as três escolas diferentes, espalhadas entre as dez ilhas que compõem o país, para a acessibilidade universal, com a reforma e reestruturação do pátio e das salas de aula. Este trabalho, que chegou a ser enviado para a presidência do Brasil, em um programa do governo brasileiro denominado Associação Brasileira de Cooperação (ABC) foi o marco inicial do grupo, que pretende ainda este ano se registrar no CNPQ e alçar voos maiores. No momento, o grupo está trabalhando com habitações de interesse social em parceria com o setor Gerência Executiva de Habitação (GIHAB) da Caixa Econômica Federal.

Imagens: Plantas baixas dos projetos das escolas adaptadas à acessibilidade universal de Cabo Verde/África. À esquerda da escola de Ribeira Grande na Ilha de Santo Antão; no centro, a escola de Santa Catarina na Ilha de Santiago; à direita, a escola de Mosteiros na Ilha do Fogo.
“Um dos desafios do grupo ASA é por meio, da nossa criatividade, conseguir excelência nas soluções propostas levando em consideração o menor custo total a ser gasto na obra. E a sigla, ASA, vem ao encontro desta premissa, ou seja, buscarmos através da abstração da palavra “asa”, que nos remete aos voos dos pássaros, liberdade de criação, alçarmos voos imaginativos com a intenção de buscarmos soluções de qualidade nas mais diferentes áreas da arquitetura e urbanismo. E, outro desafio e a principal missão do ASA, é contribuir com as comunidades carentes e com a formação do estudante de arquitetura. Propiciar a este estudante um contato direto com as comunidades a serem contempladas pelo nosso projeto, através de levantamentos nos locais de intervenção e pelas entrevistas a serem realizadas. Desenvolvendo, desta maneira, a sensibilidade deste futuro profissional e o papel fundamental de cidadão que ele exercerá frente às questões que necessitam de melhorias em nosso país. Ao unir atividades de pesquisa e extensão, o aluno é beneficiado em seu aprimoramento técnico-científico, desenvolve seu espírito crítico-reflexivo, intuitivo e solidário, porém o foco do grupo vai mais além, trás como uma importante meta incentivá-lo, ao inserir-se, como profissional no mercado de trabalho, a interessar-se em contribuir na construção de uma da sociedade mais justa, igualitária e melhor, sem pensar apenas nos ganhos materiais que a profissão poderá retribuir a ele.” Explica a profa. Taís.

Imagem: Professora Taís Alves, professor João Kaminski Júnior e professor Paulo Lemos com acadêmicos da Engenharia civil e Arquitetura e Urbanismo, participantes do Grupo ASA.
Integrantes do Grupo ASA:
Coordenadora: Profa. Dra. Taís Maria Peixoto Alves;
Profa. Dra. Giane Campos Grigoletti, Profa. Me Juliana Pippi Antoniazzi, Prof. Me. Carlos André Soares Fraga e Esp. Paulo Rogério Lemos.
Acadêmicos: Ana Helena Leichtweis; Ana Julia Breunig de Freitas; Camila Zambenedetti Lucca; Carlos Diaz Filho; Francisco Cenzi De Ré; Ione Bertoncello; Isadora Carpes Daltrozo; João Pedro Silveira; Larissa Kraemer Rigon; Luzia Oliver Brand; Maria Antonella Aranda Avila; Maria Cecília Pereira da Rocha; Rafaela Gelatti Senna, Silvia Farias; Renata Albernard.
Colaboradores do PET (Programa de Ensino Tutorial):
Coordenador: Prof. Dr. João Kaminski Júnior
Acadêmicos: Augusto de Souza Pippi; Bianca Trentin; Douglas Azevedo Lobo; Eduardo Schneider; Evelyn Paniz; Gerson Severo Trindade; Jamile Giriboni Rossi; Leandro Moreira Sherer; Luiz Guilherme Grotto; Mariélen Andreolla; Rafael Moresco; Roberto Rodrigues Moro.
Texto: Agatha S. Azevedo / Fotos: Agatha S. Azevedo